
Development Site
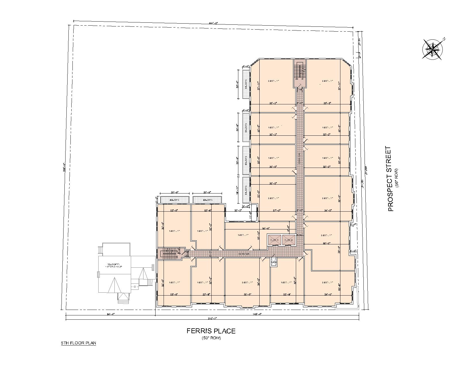
Ferris Street is a development site consisting of multiple lots totaling 200’-0” x 200’-0” on a corner lot, with a historical school building at the extreme west side of Ferris Street. Diaz Architect & Associates, P.C. designed an L shape, 5 story residential building. The first floor contains parking and a lobby at street corners. The second-floor level contains a raised historical cottage, vegetable field and pool with surrounding terrace. The remaining portion of the second floor is a mixture of one- and two-bedroom units with balconies on the inner side. The third, fourth and fifth floors have 17 units on each floor for a total of 67 units.
The facade is highly articulate with projecting sections, and the entire facade with mansard roof with dormers with bowed and triangular gables. There is cornice with large brackets below the mansard roof. The introduction of slightly projecting vertical bay windows with composite wood accents and recessed panels adds another element of fenestration. Window surrounds are accentuated with vinyl molding and head bands. Various materials like simulated stone on the first floor and different color and dimension siding add to variety of surface. The raised historical building provides an opportunity for the garage entrance.

Have a project to discuss?
call us
(212) 730-2240
